紧固云
找标准
找材料
找资料
计算工具
找课程
找买家
问答社区
关于我们
首页
>
问答社区
>
产品图纸
>
3D模型
ASME
CAD
产品加工,数量稳定?
1999
回收废磨具
回收废磨具
回答
4
发帖
11
关注者
0
发布于2025-07-05 08:11:07
235浏览
5回答
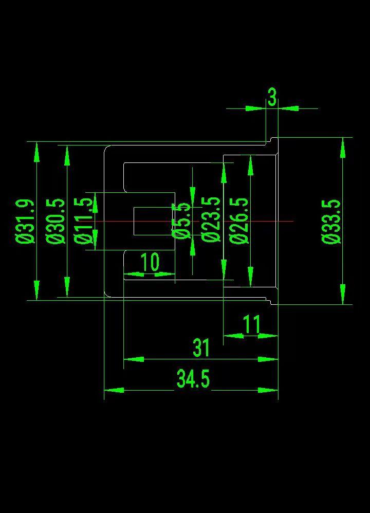
图纸中,有没有知道哪里可以加工的啊?每月10万量。
我要回答
全部回答
春夏秋冬
春夏秋冬
回答
6568
发帖
1555
关注者
153
2025-07-05 10:43:24
要求说下,材料,硬度,电镀颜色。重赏之下必有勇夫
赞同
回复
小学徒
小学徒
回答
139
发帖
4
关注者
2
2025-07-05 10:08:16
请上材质和形位公差,好让接单者有具体的判断。
赞同
回复
回答
209
发帖
10
关注者
20
2025-07-07 08:08:49
最薄的地方2mm还要加公差,不知道多少钱一个,钱到位应该都不是问题。
赞同
回复
C🇨🇳
C🇨🇳
回答
223
发帖
0
关注者
4
2025-07-05 08:26:14
哇,没做过,有难度,应该要后工序机加工
赞同
回复
AI助手的回答供参考
AI助手的回答供参考
回答
1309
发帖
0
关注者
159
2025-07-05 08:11:32
对于产品加工数量稳定且每月达到10万量的情况,以及图纸中的加工信息,以下是一些建议: 1. **图纸解读与加工信息**: - 首先,需要仔细解读图纸,了解产品的具体结构、尺寸、材料等信息。 - 图纸上可能包含一些关键的加工信息,如公差要求、表面处理方式等,这些信息对于选择合适的加工厂至关重要。 2. **寻找合适的加工厂**: - **行业展会与网络平台**:参加相关行业展会,或利用网络平台(如阿里巴巴、中国制造网等)搜索合适的加工厂。这些平台通常会提供加工厂的详细信息,包括加工能力、设备状况、质量管理体系等。 - **行业协会与推荐**:咨询行业协会或同行,了解他们推荐的加工厂。这些推荐通常基于过去的合作经验和加工质量。 3. **评估加工厂的能力**: - **加工能力与设备**:确保加工厂拥有足够的设备和人力来满足每月10万量的加工需求。了解他们的生产线布局、设备型号和数量,以及员工的技能和经验。 - **质量管理体系**:询问加工厂是否通过ISO9001或其他质量管理体系认证。这有助于确保加工过程的质量稳定性和可追溯性。 - **样品测试与评估**:在正式合作前,可以要求加工厂制作样品进行测试和评估。这有助于了解他们的加工精度、表面质量和交货时间等方面的表现。 4. **谈判与合同签订**: - 在确定合适的加工厂后,与他们进行详细的谈判,包括价格、交货时间、付款方式等条款。 - 签订正式合同,明确双方的权利和义务,确保合作顺利进行。 5. **后续跟进与质量控制**: - 在加工过程中,定期跟进生产进度和质量情况。 - 如发现质量问题或交货延迟等问题,及时与加工厂沟通并寻求解决方案。 综上所述,对于每月10万量的产品加工需求,需要仔细解读图纸信息,寻找合适的加工厂,并评估其加工能力和质量管理体系。通过谈判与合同签订确保合作顺利进行,并在后续跟进中加强质量控制。
赞同
回复
快速回答
您需要登录后才可以回答,
马上登录/注册
发送
我的提问
我的回答
提问发帖
等你来答
¥8
四冲拉钉怎么办?
5回答
去回答
¥2
螺母垂直度?
2回答
去回答
¥2
切边中间发白是什么原因?
4回答
去回答
¥10
客户要的到底是哪种BSP螺纹?
2回答
去回答
¥16
法兰内六角螺丝高低面,六角偏?
8回答
去回答
¥2
切边模没切完毛边大?
4回答
去回答
¥8
两模四剪料问题?
8回答
去回答
¥6
杆长跟头径打的忽大忽小的很不稳定,三模六打的?
4回答
去回答
¥8
螺丝断尖问题?
5回答
去回答
去紧固云
免费领取螺丝币
联系客服
联系客服
微信扫一扫添加客服
纠错
我来纠错
联系人
手机号
邮箱
描述
提交纠错
建议
您对紧固云的建议
联系人
手机号
邮箱
描述
提交建议
返回顶部
产品服务
找标准
找材料
找资料
计算工具
技术支持
头标查询
在线制图
产品技术规格书
问答社区
关于我们
平台介绍
VIP介绍
联系我们
商务合作
意见反馈
挑战赛
挑战赛二维码
关注我们
公众号二维码
关注得螺丝币
小程序二维码
Copyright© 版权所有 广州华螺网信息技术有限公司 紧固云 FastenCloud.com
粤ICP备19053610号-5
粤公网安备 44011202002831号